Aký bude areál SAV?
História a perspektívy urbanistického a architektonického rozvoja areálu SAV v Bratislave
Areál Slovenskej akadémie vied na bratislavskej Patrónke patrí k najstarším moderným areálom v meste, ktoré od svojho vzniku až do súčasnosti plnia pôvodnú funkciu. V priebehu 20. storočia sa na jeho urbanistickej koncepcii a na návrhoch jednotlivých budov podieľali najlepší slovenskí architekti. Rovnakú príležitosť dostala v septembri 2015 aj najmladšia generácia slovenských architektov, poslucháči šiesteho ročníka Fakulty architektúry STU. Spojenie aktuálnej témy s vynikajúcimi architektmi pedagógmi a poslucháčmi posledného ročníka štúdia architektúry umožňovalo vlastníkom aj užívateľom areálu získať celú sériu podnetov a dostatočne overiť rozvojový potenciál nehnuteľnosti. Pedagógovia a študenti zase získali možnosť pracovať na ambicióznom zadaní, prezentovať výsledky svojej práce pred širokou verejnosťou a dokonca potenciálne vstúpiť aj do reálneho procesu plánovania areálu.
Prístrešok pre vedu a výskum
Stavby určené pre vedu a výskum dodnes predstavujú jeden z najťažších a najviac špecifických typologických druhov. Napriek tomu, že v našom prostredí sa s nimi stretávame už niekoľko desiatok rokov, neexistuje jednoznačná forma, obsah alebo princíp komponovania ich vnútorných priestorov. Okrem štandardných technických a prevádzkových požiadaviek musia zvládnuť celý rad ďalších úloh akými sú napríklad nezávadné hygienické a bezprašné prostredie, hlučnosť, vibrácie, magnetické polia, bezpečnosť pri práci či ochrana výsledkov výskumu. K tomu treba prirátať neustály vývoj nových výskumných metód a prístrojového vybavenia v porovnaní s dlhým časom od prípravy investičného zámeru po realizáciu takejto stavby.1 Architekt preto musí nielen správne odhadnúť obsah a formu výskumného objektu, ale aj flexibilnosť a určitú nadčasovosť jednotlivých komplexov.
Na Slovensku tvorí najznámejší komplex novodobých výskumných stavieb areál Slovenskej akadémie vied. Pred založením SAV v roku 1953 sa veda na území Slovenska rozvíjala najmä na vysokých školách, v Matici slovenskej, Slovenskom národom múzeu a jej priamych predchodcoch, ktorými boli Slovenská učená spoločnosť (Učená spoločnosť Šafárikova) a Slovenská akadémia vied a umení. Slovenská akadémia vied tak krátko po svojom vzniku riešila v dôsledku projekčnej nepripravenosti priestorovú situáciu jednotlivých pracovísk adaptáciou „zdedených“ a získaných priestorov. V rámci Bratislavy získalo napríklad Predsedníctvo SAV bývalú budovu Všeobecného penzijného ústavu, chemické pracoviská dostali priestory po rafinérii Apollo na Mlynských nivách, výskumníci z oblasti biologických a lekárskych vied prijali budovu na Sienkiewiczovej ulici (pôvodne sídlo Okresnej nemocenskej pokladnice a obytný dom) a spoločenskovedné pracoviská sa sústredili v bývalej administratívnej a obytnej budove Coburgových železiarní na Klemensovej ulici, v ktorých pôsobili už v časoch SAVU. Mimo hlavného mesta získala akadémia najmä priestory Archeologického ústavu na Nitrianskom hrade, observatórium na Skalnatom plese, Arborétum Mlyňany, ale aj komplex Smolenického zámku, v ktorom bol zriadený Domov vedeckých pracovníkov.2 Väčšinu z uvedených stavieb však nenavrhli pre potreby výskumných pracovísk, a preto nemohli plnohodnotne saturovať priestorové nároky špecializovaných prírodovedných či technických pracovísk. Vládne orgány zodpovedné za výstavbu preto už v roku 1954, jeden rok po vzniku akadémie, hľadali miesto vhodné na koncentráciu výskumných ústavov umožňujúce lepšiu koordináciu ich práce.
„Bratislavská Patrónka bude patriť vede“
Ako najvhodnejšia lokalita sa napokon ukázala bratislavská Patrónka, miesto bývalej strelnice na severozápadnom okraji mesta. V západnom bratislavskom obvode sa v tom čase realizovali alebo plánovali realizovať aj ďalšie inštitúcie mestského i nadmestského významu, napríklad zdravotnícke zariadenia (spolu s lekárskym výskumom) na Kramároch, televízne stredisko a areál vysokých škôl v Mlynskej doline, závody technického skla a iné.3 Toto miesto poskytovalo okrem dobrej dostupnosti, vhodných prírodných podmienok (napr. priaznivý smer prevládajúcich vetrov) aj tiché prostredie a možnosť ďalšieho priestorového rozvoja.4
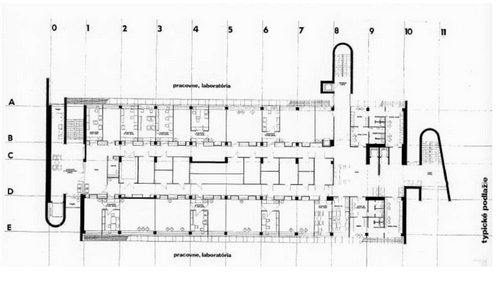
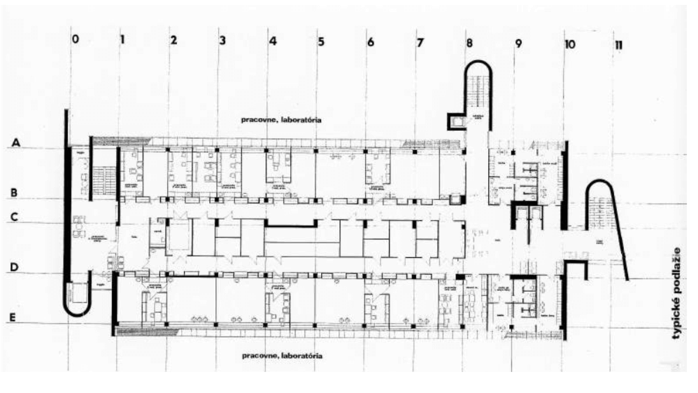
Krátko po získaní tohto 16-hektárového pozemku udelil vládny výbor pre výstavbu v júli 1955 súhlas na vypracovanie zastavovacieho plánu areálu SAV na Patrónke. Celá výstavba mala byť rozdelená do troch etáp. Prvú z nich vypracoval kolektív Stavoprojektu pod vedením architekta Karola Paluša. Zahŕňala výstavbu objektov pre chemické vedy, ale predovšetkým infraštruktúru celého areálu, napríklad komunikácie, inštalačné rozvody, kotolňu a garáže. Táto etapa mala byť dokončená v roku 1961, ale v tomto čase boli napokon hotové iba pomocné objekty.5 Hlavnú budovu chemického ústavu dokončili až o dva roky neskôr ako jediné výskumné pracovisko tejto etapy. Jej priestorové riešenie, ktoré v sebe zahŕňa program rôznych vedeckých pracovísk, je komponované do dispozičného trojtraktu s priebežnými inštalačnými priečkami, slúžiacimi na správne odvetrávanie technicky náročných prístrojov a laboratórií bez narušenia estetickej a funkčnej celistvosti objektu. Pôvodný architektov návrh pozostával zo štvorpodlažnej – esovito zalomenej hmoty laboratórií a nižšieho predsadeného dvojpodlažného krídla spoločenských priestorov. Vstup dopĺňala ľahká doskovitá markíza so šikmou podperou. Nižšia bočná hmota napokon ostala nerealizovaná, čo oslabilo celkovú prevádzkovú aj výtvarnú koncepciu objektu.6 Budova si však napriek tomu zachovala jedinečný charakter i postavenie v rámci celého areálu. Z architektonického hľadiska ju možno považovať za najhodnotnejšie dielo celého komplexu a súčasne aj za jedno z vrcholných počinov architekta Paluša.
Karol Paluš napokon v areáli projektoval ešte budovu pavilónu ricketsií, ktorá mala slúžiť virologickému ústavu. Dvojpodlažný pavilónový objekt komponoval okolo centrálneho átria s čiastočne otvoreným prízemím v oblasti východného nárožia. Kontrastné objemové a hmotové riešenie týchto dvoch budov podčiarkuje dôležitosť individuálneho prístupu v rámci projektovania stavieb pre výskum. Spoločným znakom oboch objektov je, žiaľ, zmena stavby počas realizácie, ktorá viedla k poškodeniu pôvodného architektonického riešenia.
Druhá etapa rozvoja vedeckého areálu
V roku 1959 nadviazal tím architektov Dušan Dorotiak – Tibor Zalčík – Jaroslav Kapusta7 na prvú etapu zastavovacieho plánu novou štúdiou urbanistickej koncepcie areálu. V tejto etape sa uvažovalo najmä s návrhom objektov technických vied pavilónového charakteru komponovaných okolo budovy chemického ústavu. Z tohto projektu sa však nakoniec nič nerealizovalo a v roku 1961 bol vypracovaním nového plánu druhej etapy urbanistického rozvoja areálu poverený tím Krajského projektového ústavu pod vedením architekta Martina Kusého. Generálne riešenie II. – III. etapy SAV (Martin Kusý, Lumír Lýsek, Stanislav Talaš)8 malo na súčasnú podobu areálu najzásadnejší vplyv.
Návrh poskytol riešenie celého areálu vrátane vzťahov a nadväzností jednotlivých funkčných celkov. Sformoval sa konečný ráz areálu s rozvoľnenou zástavbou a jasnou priestorovou orientačnou osnovou. Vstup do areálu zo starej Dúbravskej cesty nadväzuje na ústredný priestor vymedzený ústavom stavebníctva a architektúry, ústrednou (centrálnou) budovou a už existujúcim chemickým ústavom. Kolmo naň sa tiahne pozdĺžna stredová línia komunikácie, ktorá zabezpečuje prístup k ostatným výskumným ústavom. V takejto základnej osnove bolo možné zohľadniť prevádzkové špecifiká a požiadavky jednotlivých vedných odborov a ústavy usporiadať do logickej sústavy.
Navyše v tom čase bola už pre akadémiu pripravená aj väčšina architektonických a stavebných projektov, ktoré vznikali v rokoch 1960 až 1961, a tak mohli byť zapracované do konečného urbanistického riešenia.
Na základe schválenej druhej etapy výstavby sa v rokoch 1962 až 1968 postupne realizovala a odovzdávala do používania podstatná časť stavieb. Architekt Martin Kusý okrem urbanistického plánu navrhol aj jednu z najvyšších budov celého areálu – ústav stavebníctva a architektúry.9 Hmotovo je budova rozdelená do dvoch základných častí. Priestorovo náročné mechanické a technologické laboratóriá vytvárajú rozľahlý dvojpodlažný hranol, presvetlený troma vnútornými átriami. Funkčne aj priestorovo kontrastná časť teoretických pracovísk je navrhnutá ako šesťposchodová celistvá hmota, výšková dominanta pri vstupe do areálu.
Na Patrónke ďalej vybudovali neaktívny a aktívny zverinec pre ústav experimentálnej farmakológie (Mária Krukovská), elektrotechnický ústav spolu s ústavom merania a meracej techniky (Lumír Lýsek a Tatiana Ferienčíková), ústrednú budovu (Stanislav Talaš) a ústav strojov a automatizácie.10
Nasledujúca urbanistická štúdia areálu, tentoraz pod vedením Chemoprojektu (Inž. Gavora, 1964)11 rozvíjala najmä jeho severnú zónu. V centrálnej a južnej časti nadväzovala na predchádzajúci projekt KPÚ, kde naďalej počítala s rozšírením niektorých výskumných pracovísk. Severný úsek naopak svojou pavilónovou zástavbou pripomínal urbanistickú štúdiu z roku 1959. Ani z tohto návrhu sa však nič nerealizovalo.
Tretia etapa výstavby: aktuálny urbanizmus areálu
Nové impulzy, ako aj zmeny a rozvinutie predošlej zástavby priniesol až finálny variant tretej etapy výstavby z roku 1971 od architekta Mariána Marcinku.12
Zastavovací plán tretej etapy sa pripravoval už začiatkom šesťdesiatych rokov, no jeho plánovanie načas skomplikovali námety Útvaru hlavného architekta Bratislavy o vedení trasy diaľnice cez areál SAV, čo by znemožnilo realizáciu ďalšej výstavby. Tieto zámery sa našťastie nerealizovali a na projekt III. stavby vypísal Zväz slovenských architektov súťaž.13 Jej víťaz, architekt Marián Marcinka výstavbu rozdelil na ďalšie tri fázy. V rámci prvej z nich v areáli pokračovali s výstavbou nových inžinierskych sietí a pomocných objektov. Potom prišli na rad budovy výskumných ústavov. Z urbanistického hľadiska bola jednoznačne definovaná poloha virologického ústavu a ústavu polymérov. V návrhu bola do centrálnej polohy začlenená budova správy areálu (dnešné sídlo ústavu pre výskum srdca, Marián Marcinka), ktorá bola v tom čase už vo výstavbe. Návrh súčasne rozvíjal a dopovedal koncepciu prevádzky automobilovej dopravy, ktorú tvorila okružná komunikácia vedená po obvode areálu a na ňu nadväzujúce prípojky k jednotlivým ústavom vybavené samostatnými parkoviskami. Centrálna pozdĺžna komunikačná línia pritom mala ostať vyhradená pre pešiu prevádzku. Z hľadiska funkčnej náplne mali v areáli pribudnúť ústavy biologických a spoločenských vied, ústav fyziky a penzionát stážistov s personálnymi bytmi. Budovy mali byť umiestnené v severnej a južnej časti areálu, k realizácii týchto zámerov však nedošlo.
Prvou budovou, ktorú postavili v rámci tretej etapy, bol ústav experimentálnej chirurgie, pôvodne určený pre riaditeľstvo výstavby pracovísk a správu areálu. V dôsledku plánovanej funkcie sa svojím výrazom odlišoval od ostatných budov. Administratívne priestory správy areálu nepotrebovali riešiť otázku plošných a technických nárokov laboratórií, a tak architekt navrhol budovu ako subtílny horizontálny objem zdvihnutý nad terénom. Priebežné terasy lemujúce fasády výrazne plasticky členili budovu.14 Kontakt s terénom zabezpečovala široká vstupná rampa a konzolovitá lávka, ktorá mala preklenúť aj priľahlú Dúbravskú cestu. Realizovalo sa z nej však len torzo.
Riaditeľstvo výstavby pracovísk začalo aj realizáciu ústavu polymérov (Eugen Kramár), ústavu molekulárnej biológie a budovy virologického ústavu (Marián Marcinka). Virologický ústav sa zaradil medzi najväčšie a najzložitejšie stavebné akcie areálu na Patrónke. Výskum, ktorý sa mal v budove realizovať, vyžadoval celý rad miestností rozličných priestorových a technických nárokov, čo podmienilo pôdorysné riešenie v podobe päťtraktu. Charakteristický ráz tejto monumentálnej budovy určujú horizontálne pásové okná umožňujúce súčasne variabilitu vnútorných priestorov a masívne objemy vertikálnych komunikácií na okraji budovy. O zložitosti realizácie tohto špecifického projektu svedčí aj dlhý čas výstavby, ktorý sa natiahol na viac ako desať rokov.
Posledný známy pokus o celkové urbanistické a rozvojové plánovanie areálu výskumných ústavov pochádza z roku 1981. Generel rozvoja SAV, Dúbravská cesta – Patrónka (Jozef Struhař, Miroslav Šišiak, Tibor Majláth)15 do určitej miery zahŕňa vybrané riešenia predošlých etáp, ktoré pomere veľkoryso dopĺňa o rozšírenie viacerých existujúcich ústavov, dielne, technické vybavenie ale napríklad aj o športoviská. Ani z tohto návrhu sa však takmer nič nerealizovalo. V osemdesiatych rokoch 20. storočia pribudol už len objekt vrátnice, bufet, oplotenie a niektoré cestné komunikácie.
Stavebná aktivita v areáli akadémie sa skončila v deväťdesiatych rokoch minulého storočia po viac ako tridsiatich rokoch takmer nepretržitej výstavby. V dôsledku zhoršenej finančnej situácie sa tak nepodarilo realizovať budovy pre ďalšie výskumné pracoviská, internát stážistov, hotel, športoviská ani rozšírené parkovanie pred vstupom do areálu. Disponibilné prostriedky sa investovali už len do údržby, obnovy a zateplenia existujúcich budov. Mnohé z nich mali pritom v tom čase viac ako 20 či 30 rokov a tomu zodpovedal aj ich technický stav. Táto situácia pretrvávala až do roku 2009, keď sa akadémii výmenou za časť nehnuteľného majetku podarilo získať novú budovu pre botanický ústav.16 V roku 2015 pribudli v severovýchodnej časti areálu dve budovy, Pavilón lekárskych vied a Pavilón materiálových vied. Ich osadenie v rámci areálu na Patrónke je prejavom tendencie koncentrovať výskumné pracoviská SAV v rámci jednej lokality. Intenzifikácie zástavby bez adekvátnej urbanistickej štúdie, ktorá by overila priestorové a objemové možnosti areálu, však nie je dlhodobo udržateľná.
Areál SAV po 1989 a jeho potenciál
Už počas plánovania prvých troch etáp rozvoja architekti zdôrazňovali, že urbanistická štruktúra areálu nie je definitívna. Budovy jednotlivých ústavov navrhli tak, že vzdialenosti medzi nimi umožňujú ich prípadný priestorový nárast ale aj ďalšiu výstavbu. Voľné exteriérové plochy sú súčasne parkovo upravené tak, že pôsobia dojmom, akoby do nich v hustých súvislých skupinách prenikal okolitý lesný masív.17 Krajinárske poňatie areálu je charakteristickým produktom uvažovania polovice šesťdesiatych rokov 20. storočia a je neoddeliteľnou súčasťou celkovej koncepcie riešenia. Centrum areálu nadväzujúce na hlavný vstup dodnes zaujíma kľúčové postavenie, aj keď je do určitej miery oslabené nekoncepčnými zásahmi ostatných rokov. Podstatným faktorom oslabujúcim pôvodnú koncepciu je aj organizácia dopravy. Automobilová doprava bola pôvodne plánovaná ako okružná po obvode areálu, pričom pozdĺžna stredová línia mala slúžiť výhradne pešiemu pohybu.18
Tento zámer sa však nikdy celostne nerealizoval. Aktuálne fungovanie dopravy v areáli je tak výsledkom provizórnych a náhradných riešení, ktoré však paradoxne potvrdzujú vitalitu organického princípu kompozície v pôvodných koncepciách. Rovnaký princíp sa nakoniec uplatnil aj pri výstavbe a dostavbe jednotlivých budov. Keďže sa nepodarilo všetky plánované stavby realizovať, provizórne budovy sa nakoniec stali súčasťou stavebnej podstaty areálu. Individuálne, ad hoc úpravy budov a ich rozmanité funkčné využívanie podmienené spoločenskými zmenami po roku 1989 však spôsobili eróziu tejto relatívne stabilizovanej štruktúry. Najviac pritom utrpeli okrajové časti na juhovýchode areálu. Areál Slovenskej akadémie vied však napriek tomu dodnes disponuje väčšinou svojich pôvodných architektonických a urbanistických hodnôt. Práve ich zachovanie a budúce zmysluplné využitie potenciálu areálu pre potreby vedy vyžaduje nadviazať na tradíciu dlhodobého urbanistického plánovania.
Spracovali: MORAVČÍKOVÁ, Henrieta - KRIŠTEKOVÁ, Laura, Oddelenie architektúry Historický ústav SAV
Kompletná štúdia bola uverejnená v Stredoeurópskom vedeckom a odbornom časopise FA STU Alfa Spectra : Urbanistické listy FA STU, 2016, roč. 21, č. 2
Jej skrátená verzia je uverejnená so súhlasom autoriek
Poznámky:
- BUHÁČ, Dušan: V čom je špecifické projektovanie vedeckých ústavov. Projekt 20, 1978, č. 5, s. 4 – 5.
- KOVÁČ, Dušan a kol.: Dejiny Slovenskej akadémie vied. Bratislava: VEDA, vydavateľstvo SAV 2014, s. 348 – 349.
- ZALČÍK, Tibor: Akademické mestečko podľa našich predstáv. Areál vedeckovýskumných pracovísk SAV v Bratislave. Projekt 20, 1978, č. 5, s. 7.
- Bratislavská Patrónka bude patriť vede. Rozhovor s Emilom Bellušom. Naša veda 7, 1960, č. 1, s. 43.
- KOVÁČ, Dušan a kol.: Dejiny Slovenskej akadémie vied. Bratislava: VEDA, vydavateľstvo SAV 2014, s. 353.
- PALUŠ, David: Témy architektúry Karola Paluša. Projekt 47, 2005, č. 2, s. 59 – 60.
- Ústredný archív SAV, fond Riaditeľstvo výstavby pracovísk SAV, 104C, šk. 10 – 11
- Ústredný archív SAV, fond Riaditeľstvo výstavby pracovísk SAV, 105C, šk. 12 – 14
- ZALČÍK, Tibor: Akademické mestečko podľa našich predstáv. Areál vedeckovýskumných pracovísk SAV v Bratislave. Projekt 20, 1978, č. 5, s. 10.
- DULLA, Matúš – GRÁCOVÁ, G.: Areál Slovenskej akadémie vied. Slovensko 2, 1978, č. 1, s. 2 – 3.
- Ústredný archív SAV, fond Riaditeľstvo výstavby pracovísk SAV, 187C, šk. 171 – 172
- Ústredný archív SAV, fond Riaditeľstvo výstavby pracovísk SAV, 106C, šk. 15 – 20
- KOVÁČ, Dušan a kol.: Dejiny Slovenskej akadémie vied. Bratislava: VEDA, vydavateľstvo SAV 2014, s. 353.
- HUSÁK, Vladimír: Budova správy areálu SAV v Bratislave. Projekt 20, 1978, č. 5, s. 14.
- Ústredný archív SAV, fond Riaditeľstvo výstavby pracovísk SAV, 217C, šk. 316 – 317
- KOVÁČ, Dušan a kol.: Dejiny Slovenskej akadémie vied. Bratislava: VEDA, vydavateľstvo SAV 2014, s. 354.
- ZALČÍK, Tibor: Akademické mestečko podľa našich predstáv. Areál vedeckovýskumných pracovísk SAV v Bratislave. Projekt 20, 1978, č. 5, s. 8.
- MARCINKA, Marián: Nové budovy pre vedecký výskum a služby SAV v Bratislave. Projekt 11, 1969, č. 5 – 6, s. 105.

